Vragen of extra informatie gewenst over dit pand?
Bijkomende informatie over het pand
Oostburg is een van de grootste woonkernen van West Zeeuws-Vlaanderen en is centraal gelegen in de gemeente Sluis. Vanuit het dorp bent u binnen enkele minuten op de rondwegen die u in tien minuten tijd naar zowel Sluis als Breskens brengen. Het centrum van Oostburg kent een diverse bedrijvigheid, Zo zitten er verschillende kledingwinkels en restaurants gevestigd en vindt men er ook een ruim aanbod van aanbieders van levensmiddelen.
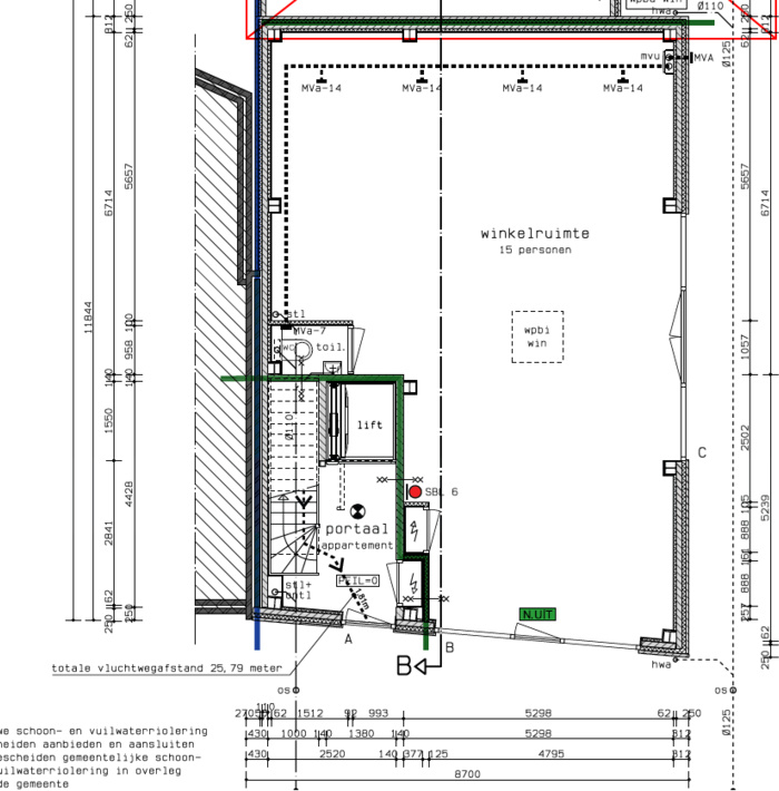
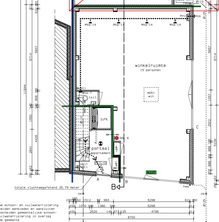
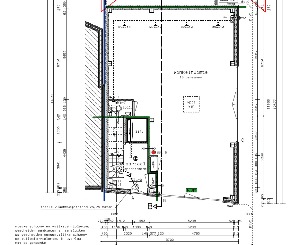
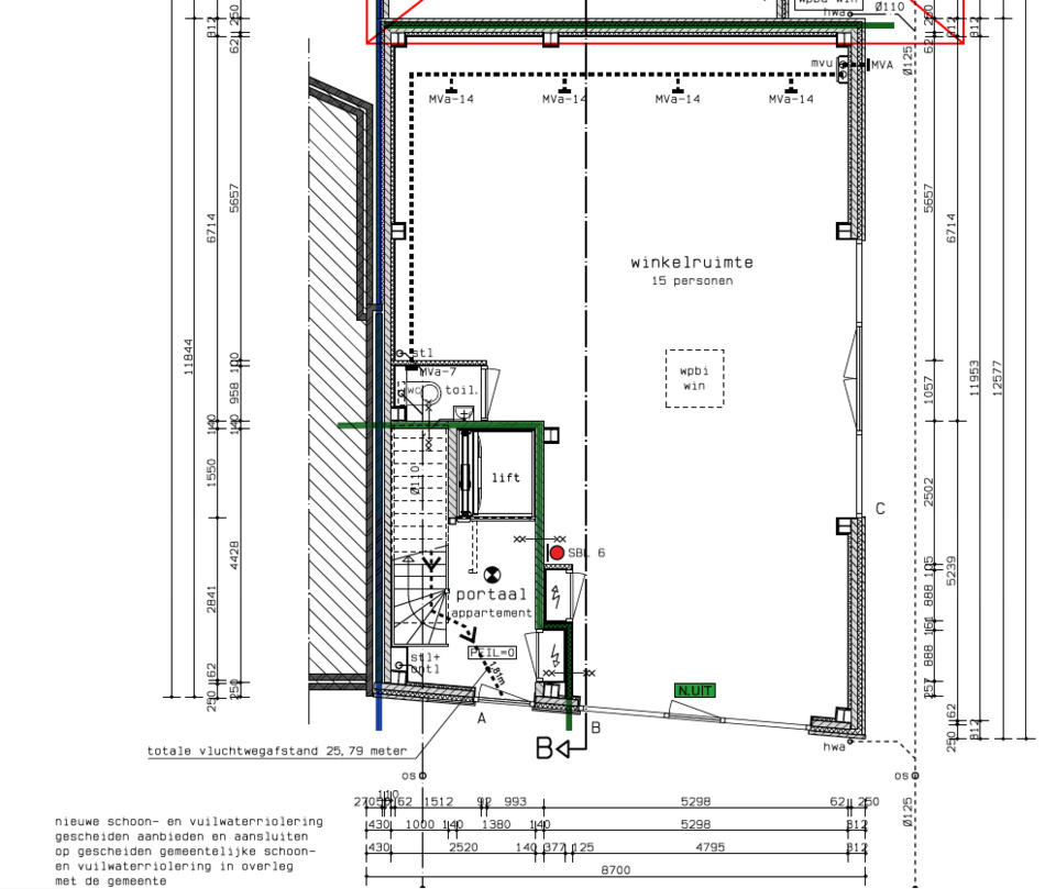
Het pand zal een frontbreedte krijgen van circa 5,30 meter en een diepte van circa 11 meter. De commerciële ruimte zal bestaan uit een gebruiksoppervlakte van circa 79 vierkante meter waarbij de gehele ruimte op de begane grond zal zijn. Naast een grote ruimte die vrij kan worden ingedeeld wordt er een afvoer voorzien voor een toilet. Het geheel zal worden opgeleverd in casco staat ( wind- en waterdicht, constructievloer, geen installaties).
Ziet u uw kans schoon en begint u hier straks uw eigen zaak? Een van onze makelaars voorziet u graag van nadere informatie.
Documenten als download beschikbaar
Contacteer Bedrijfsvastgoed Zwinregio over dit pand
Ontdek alle andere panden






